Spain
C/Astúries 40
E 08012 Barcelona
+34 93 459 11 13
GOETHE INSTITUTE
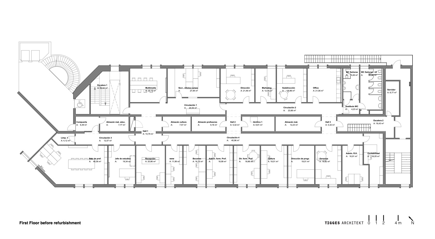
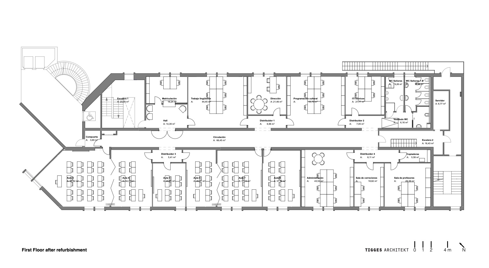
The refreshed Goethe Institute Barcelona 2026
Digitalisation is transforming the way we learn, shifting education increasingly into the virtual realm. In response, the Goethe Institute has reimagined its premises to support new modes of teaching and collaboration. As part of the project, teaching and administrative functions were brought together on a single floor, replacing the former two-level layout. This consolidation enabled the creation of a clear, intuitive circulation system, complemented by open-plan workspaces and highly adaptable classrooms.